Grundrisse

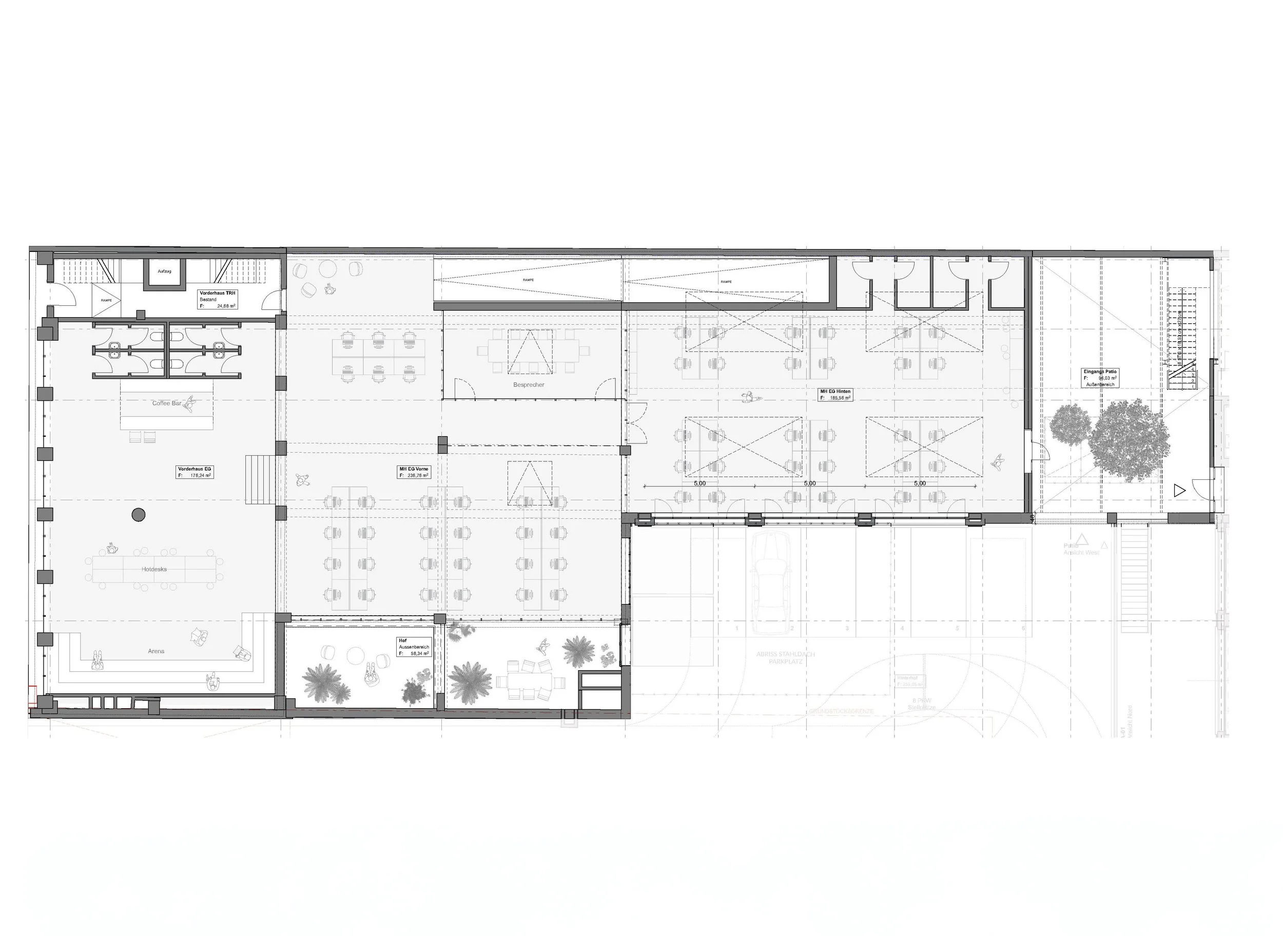
VORDERHAUS
900 QM BÜROFLÄCHE (1.OG - DG)
200 QM EG (Strassenfront)

MITTELHAUS
450 QM EG LAGER
687 QM UG LAGER

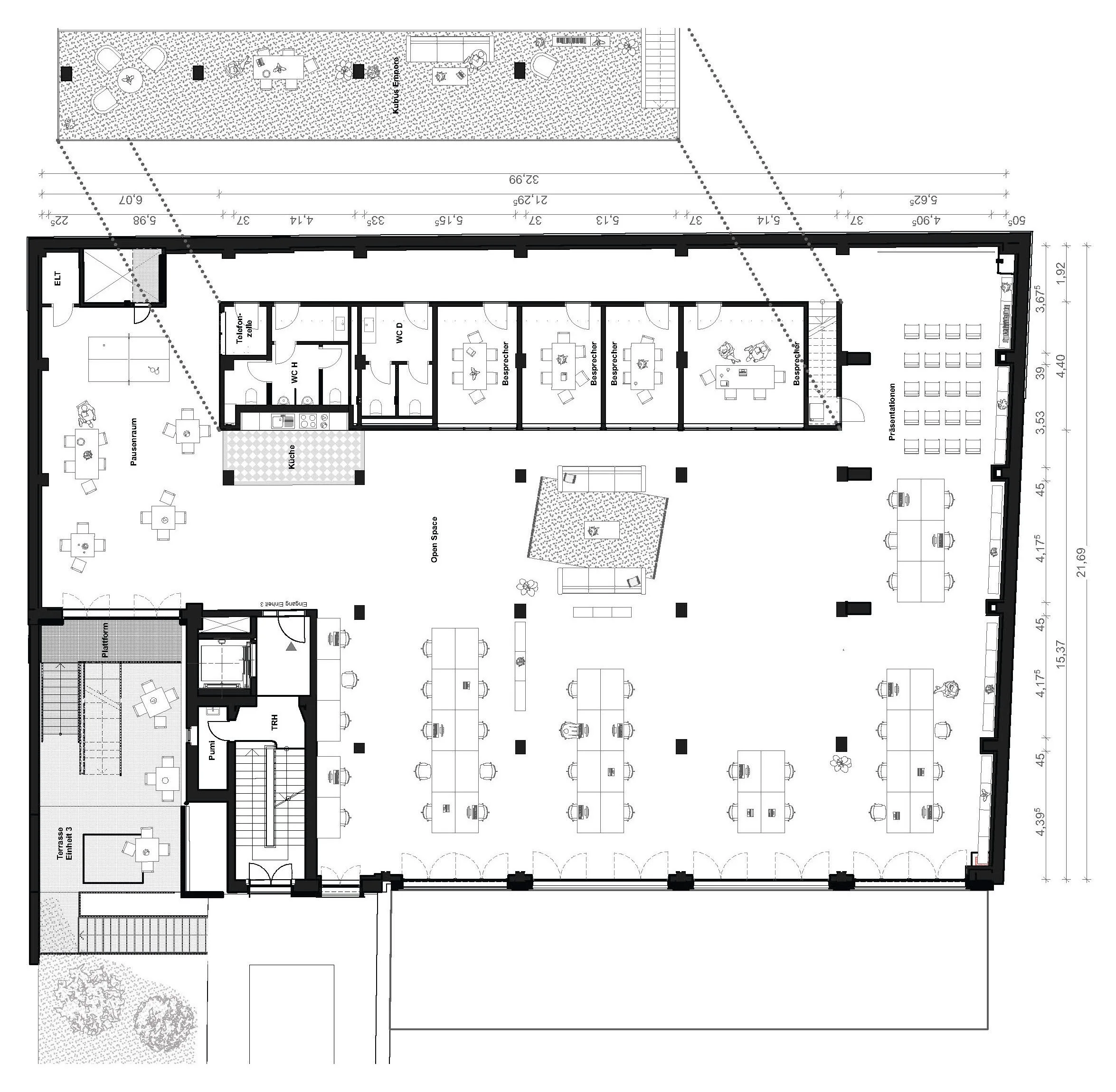
HINTERHAUS
2754 QM BÜROFLÄCHE (UG-2.OG)

HERZOGSTRASSE 87-91

Expansionsmöglichkeiten sind in mehreren Schritten möglich.

Die großzügigen Lagerflächen können mit einem Lastenaufzug an das Hinterhaus angebunden werden.

Das Gebäude ist nicht nur auf aktuellem Stand, was neues Arbeiten betrifft. Auch technisch ist es up to date: Mit Photovoltaik auf dem Dach, einer neuen Dämmung und Wärmepumpen, die die Räume wärmen und kühlen, erfüllt das Gebäude einen hohen energetischen Standard.

State of the Art

  • Photovoltaik

  • Wärmepumpe/Klimaanlage

  • Fussbodenheizung

Kontaktieren Sie uns

Sie möchten mehr über Die Herzogin erfahren? Nutzen Sie unser Kontaktformular, um das Exposé anzufordern oder uns Ihre Fragen zu stellen, oder rufen Sie uns an – Wir freuen uns auf Ihre Nachricht!

info@bbreal.de
+49 211 520 980 10